立川市砂川町1丁目 新築戸建 【全2棟】
◇週末のお出かけにも便利な「ららぽーと立川立飛」エリア
◇「国営昭和記念公園」が生活圏の落ち着いた住環境♪
◇小学校徒歩約4分でお子様の通学も安心♪
◇スーパーやコンビニ、郵便局や病院などが徒歩圏にある便利な立地
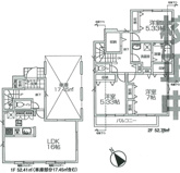
◇季節ものや大きな荷物もスッキリ片付くロフト付き!
◇全居室収納がありお部屋を広く保てます。
◇家族との会話が弾む対面式システムキッチン♪
◇人気の「立川」駅へ自転車で行けます♪
現地販売会 毎週土日祝
- ※事前に必ずお問い合わせください
- ≪詳しい周辺環境などを含め、地元企業だからこそできる丁寧でスピーディーな対応をさせていただきます。≫
≪ 土日・平日問わず現地販売会&建物見学会開催中 ≫
気になる物件がございましたら、ユタカホームプラス(0800-888-3200【通話料無料!】)までお気軽にお問合せ下さい!
※複数物件まとめてご案内することも可能です♪
インターネット上に掲載されている全ての物件(土地・戸建・マンション)のご案内が可能です!またインターネットには、掲載されていない未公開の物件も多数ございますので、お気軽にお問合せ下さい♪
◇ 建物内見学のみをご希望の方も歓迎♪
「来社はせず、直接現地集合、現地解散したい」などのご要望お気軽にご相談ください!
◇ 近くの駅やご自宅への送迎も可能!
◇ ご希望条件に一致する物件をまとめてご紹介することも可能!
・ご希望のエリア(例.立川市○○町)
・ご希望の価格帯
・そのほかご希望条件(カースペース2台、駅歩○分以内など)をご連絡いただければ、条件に一致する物件をまとめてご案内することが可能です♪一度のお問合せで効率よく建物の見学をしていただけます!
◇ 資金計画、ローンのご相談も実施しておりますので、お気軽にご相談ください♪
【ユタカホームプラス:0800-888-3200【通話料無料】
-
ローンシミュレーションこの物件を購入した場合の、月々の支払い価格の一例です。借り入れを保証するものではございません。
- 返済期間
-
- 金利
-
- ボーナス時の増額(1回分)
-
- 借入金額:
-
- 頭金:
-

- 毎月の返済額:
(※元利均等方式 金利5.00%まで ※返済年数5~50年まで入力できます)
(※ボーナスは年2回で計算しています。1000万円まで入力できます)
(※物件購入時、その他諸費用が発生する場合がございます)
情報の見方担当者のコメント 袋隼人

- 教育施設、生活施設が徒歩圏内にあり、自然と便利さを両立した街並みです。
現地は弊社すぐ近く!周辺環境併せてご案内いたします。
また、地元企業だからこそできる丁寧でスピーディーな対応をさせていただきます!
お気軽に送迎サービスもご利用ください♪お問い合わせお待ちしております!
物件概要
【新築一戸建】 物件番号:98149730 情報更新日:2025年11月02日 次回更新予定日:2025年11月16日所在地 東京都立川市砂川町1丁目12-25 交通 間取り/詳細 3LDK/ 建物面積(坪数) 65.00㎡(19.66坪) 価格 3,590万円 駐車場/月額料金 -/- 土地の敷金/保証金 -/- 借地料/借地期間 -/- 土地権利 所有権 土地面積(坪数) 86.38㎡(26.12坪) 傾斜地部分面積 - 路地状敷地 - 私道負担面積/セットバック 16.00㎡/-
私道負担割合 : 1/2高圧線下面積 - 地目/地勢 宅地/- 接道状況 一方(東 私道 4.0m) 建ぺい率/容積率 40%/80% 用途地域 第一種低層住居専用 都市計画 - 種別/構造 新築一戸建/木造 階建 2階建 築年月(築年数) 2025年 12月 (予定) 総区画数/販売区画数 -/- 向き - 現況 未完成 その他の法令上の制限 景観法/航空法/第一種高度地区、立川市景観条例、宅地造成及び特定盛土等規制法、重要土地当調査法 取引態様/引渡時期 仲介/相談 建築確認番号 第HPA-25-10027-1号 物件番号 98149730 取引条件の有効期限 2025年11月16日 設備条件 - 閑静な住宅地
- 現地販売会
- ロフト付き
- バルコニー
- 都市ガス
- 公営水道
- 公共下水
- 食器洗い乾燥機
- システムキッチン
- 対面式キッチン
- 浴室乾燥機
- 温水洗浄便座
- トイレ2ヶ所
- 収納豊富
取扱会社 - 株式会社ユタカホームプラス
- 東京都立川市柏町4丁目55番11号 YH terrace
- TEL:0800-888-3200
- 東京都知事 (3) 第95183号
- (公社)全日本不動産協会東京本部
(公社)不動産保証協会
(公社)首都圏不動産公正取引協議会
※地図上に表示される物件の位置は付近住所に所在することを表すものであり、実際の物件所在地とは異なる場合がございます。
物件お問い合わせ
立川市砂川町1丁目 新築戸建 【全2棟】の他の区画の新築一戸建
区画 間取り 価格 B号棟 3LDK 3,990万円 同じエリアの新築一戸建
価格と住所の近い物件
- 立川市一番町1丁目 新築戸建 【全1棟】
- 3,580万円 3LDK/105.19㎡
- 東京都立川市一番町1丁目
- 西武拝島線「武蔵砂川」駅 徒歩20分
- 立川市柏町4丁目 中古戸建 【全1棟】
- 3,490万円 2LDK/97.23㎡
- 東京都立川市柏町4丁目
- 多摩都市モノレール「砂川七番」駅 徒歩8分
- 立川市砂川町7丁目 新築戸建 【全1棟】
- 3,780万円 3LDK/76.58㎡
- 東京都立川市砂川町7丁目
- 西武拝島線「玉川上水」駅 徒歩18分
- 立川市一番町6丁目 新築戸建 【全1棟】
- 3,880万円 3LDK/81.00㎡
- 東京都立川市一番町6丁目
- 西武拝島線「西武立川」駅 徒歩19分
- 立川市砂川町4丁目 中古戸建 【全1棟】
- 3,980万円 3LDK/91.08㎡
- 東京都立川市砂川町4丁目
- 西武拝島線「武蔵砂川」駅 徒歩13分

































